Loading...
适用范围
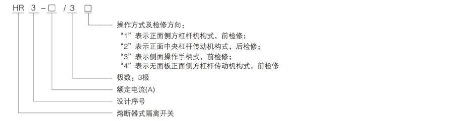
型号及含义

主要技术参数
|
约定发热电流(A) |
交流(AC)380V |
|||
|
HR3正面侧方杠杆机构式 |
HR3正面中央杠杆传动机构式 |
HR3侧面操作手柄式 |
HR3无面板正面侧方杠杆传动机构式 |
|
|
100 |
HR3-100/31 |
HR3-100/32 |
HR3-100/33 |
HR3-100/34 |
|
200 |
HR3-200/31 |
HR3-200/32 |
HR3-200/33 |
HR3-200/34 |
|
400 |
HR3-400/31 |
HR3-400/32 |
HR3-400/33 |
HR3-400/34 |
|
600 |
HR3-600/31 |
HR3-600/32 |
HR3-600/33 |
HR3-600/34 |
|
1000 |
HR3-1000/31 |
HR3-1000/32 |
HR3-1000/33 |
HR3-1000/34 |
|
型号 |
额定工作电压(V) |
额定绝缘电压(V) |
额定工作电流(A) |
约定发热电流(A) |
配用熔断体 |
|
HR3-100/31 |
380 |
660 |
100 |
100 |
RT0-100 |
|
HR3-200/31 |
200 |
200 |
RT0-200 |
||
|
HR3-400/31 |
400 |
400 |
RT0-400 |
||
|
HR3-600/31 |
600 |
600 |
RT0-600 |
||
|
HR3-1000/31 |
1000 |
1000 |
RT0-1000 |
结构特征
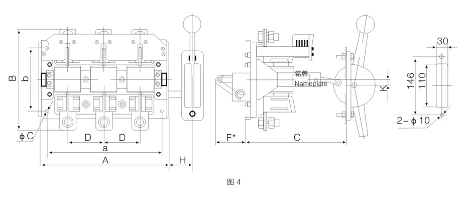
外形与安装尺寸
HR3-100~1000/31外形与安装尺寸见图1表1

表1
|
型号 |
外形尺寸 |
安装尺寸(mm) |
||||||
|
A |
B |
C* |
G |
a |
b |
Φc |
K |
|
|
HR3-100/31 |
400 |
400 |
275 |
266 |
360 |
360 |
12 |
10 |
|
HR3-200/31 |
400 |
400 |
275 |
266 |
360 |
360 |
12 |
10 |
|
HR3-400/31 |
400 |
400 |
275 |
266 |
360 |
360 |
12 |
10 |
|
HR3-600/31 |
450 |
400 |
325 |
266 |
410 |
360 |
12 |
10 |
|
HR3-1000/31 |
500 |
400 |
350 |
266 |
450 |
360 |
12 |
10 |
HR3-100~1000/32外形与安装尺寸见图2表2

表2
|
型号 |
外形尺寸(mm) |
安装尺寸(mm) |
|||||||
|
A |
B |
D |
F* |
a |
b |
Φc |
K |
||
|
HR3-100/32 |
250 |
192 |
185 |
60 |
250 |
215 |
130 |
7 |
12 |
|
HR3-200/32 |
270 |
205 |
185 |
70 |
250 |
235 |
130 |
7 |
12 |
|
HR3-400/32 |
290 |
222 |
185 |
80 |
250 |
255 |
130 |
7 |
12 |
|
HR3-600/32 |
320 |
255 |
185 |
90 |
250 |
285 |
130 |
7 |
12 |
|
HR3-1000/32 |
410 |
365 |
270 |
115 |
350 |
350 |
250 |
7 |
12 |
HR3-100~1000/33外形与安装尺寸见图3表3

表3
|
型号 |
外形尺寸(mm) |
安装尺寸(mm) |
|||||||
|
A |
B |
C |
D |
F* |
a |
b |
Φc |
H |
|
|
HR3-100/31 |
250 |
200 |
185 |
60 |
75 |
215 |
160 |
7 |
78 |
|
HR3-200/31 |
270 |
205 |
185 |
70 |
75 |
235 |
160 |
7 |
78 |
|
HR3-400/31 |
290 |
222 |
185 |
80 |
75 |
255 |
160 |
7 |
78 |
|
HR3-600/31 |
320 |
255 |
185 |
90 |
75 |
285 |
160 |
7 |
78 |
|
HR3-1000/31 |
410 |
365 |
270 |
115 |
75 |
350 |
250 |
9 |
102 |
HR3-100~1000/34外形与安装尺寸见图4表4

表4
|
型号 |
外形尺寸(mm) |
安装尺寸(mm) |
||||||||
|
A |
B |
D |
F* |
a |
b |
Φc |
H |
K |
||
|
HR3-100/32 |
250 |
200 |
250 |
60 |
75 |
215 |
160 |
7 |
78 |
12 |
|
HR3-200/32 |
270 |
205 |
250 |
70 |
75 |
235 |
160 |
7 |
78 |
12 |
|
HR3-400/32 |
290 |
222 |
250 |
80 |
75 |
255 |
160 |
7 |
78 |
12 |
|
HR3-600/32 |
320 |
255 |
250 |
90 |
75 |
285 |
160 |
7 |
78 |
12 |
|
HR3-1000/32 |
410 |
365 |
350 |
115 |
75 |
350 |
250 |
9 |
102 |
12 |
注:F*尺寸为开关接通后连杆处于最大位置时的尺寸。